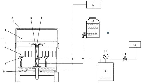
GBT10125-2012±ê×¼-¸½Â¼AÖÐÖ÷ÒªÊÇÑÎÎíÊÔÑéÏäÉè¼ÆÍ¼£¬ÊÔÑéÓ¦°´Æä¼òͼÉè¼Æ£º ¸½Â¼A £¨×ÊÁÏÐÔ¸½Â¼£© ÑÎÎíÊÔÑéÏäÉè¼Æ¼òͼ 
˵Ã÷£º 1-----ÑÎÎí·ÖÉ¢Ëþ£» 8-----¸øÊª²Û£» 15-----·ÏÆø´¦Àí£» 2-----ÅçÎíÆ÷£» 9-----¿ÕÆø±¥ºÍÆ÷£» 16-----ÅÅÆø¿Ú£» 3-----ÊÔÑéÏä¸Ç£» 10-----¿ÕÆøÑ¹Ëõ»ú£» 17-----·ÏË®´¦Àí£» 4-----ÊÔÑéÏäÌ壻 11-----µç´Å·§£» 18-----ÑÎÍÐÅÌ£» 5-----ÊÔÑù£» 12-----ѹÁ¦±í£» 19----¼ÓÈÈÆ÷£» 6-----ÊÔÑùÖ§¼Ü£» 13-----ÈÜÒºÏ䣻 7-----ÑÎÎíÊÕ¼¯Æ÷£» 14-----ζȿØÖÆÆ÷£» ͼA.1 ÑÎÎíÊÔÑéÏäµÄÉè¼Æ¼òͼ ÕýÃæÍ¼ 
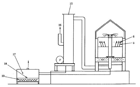
ͼA.2 ÑÎÎíÊÔÑéÏäµÄÉè¼Æ¼òͼ ²àÃæÍ¼ ÊÔÑé½áÊøºó£¬µ±ÎíÆøÍ¨¹ý½¨ÖþÎïµÄ³ö¿ÚÏòÍâÅÅ·ÅÒÔ¼°·ÏË®ÏòÍâÅŷŵ½¹ÜµÀ֮ǰ£¬ÑÎÎíÊÔÑéÏä×îºÃÓкÏÊʵĴ¦Àí·½Ê½¡£ |